Salisbury Road, Birmingham £900 pcm (Freehold) - Ref: 2942
1 1 1
Overview
Modern Elegance in Moseley: A Refurbished Retreat with Style and Convenience!

Welcome to your new home in the heart of Moseley!
This charming second-floor flat in a character property has undergone a stunning refurbishment, offering a perfect blend of modern living and classic elegance.

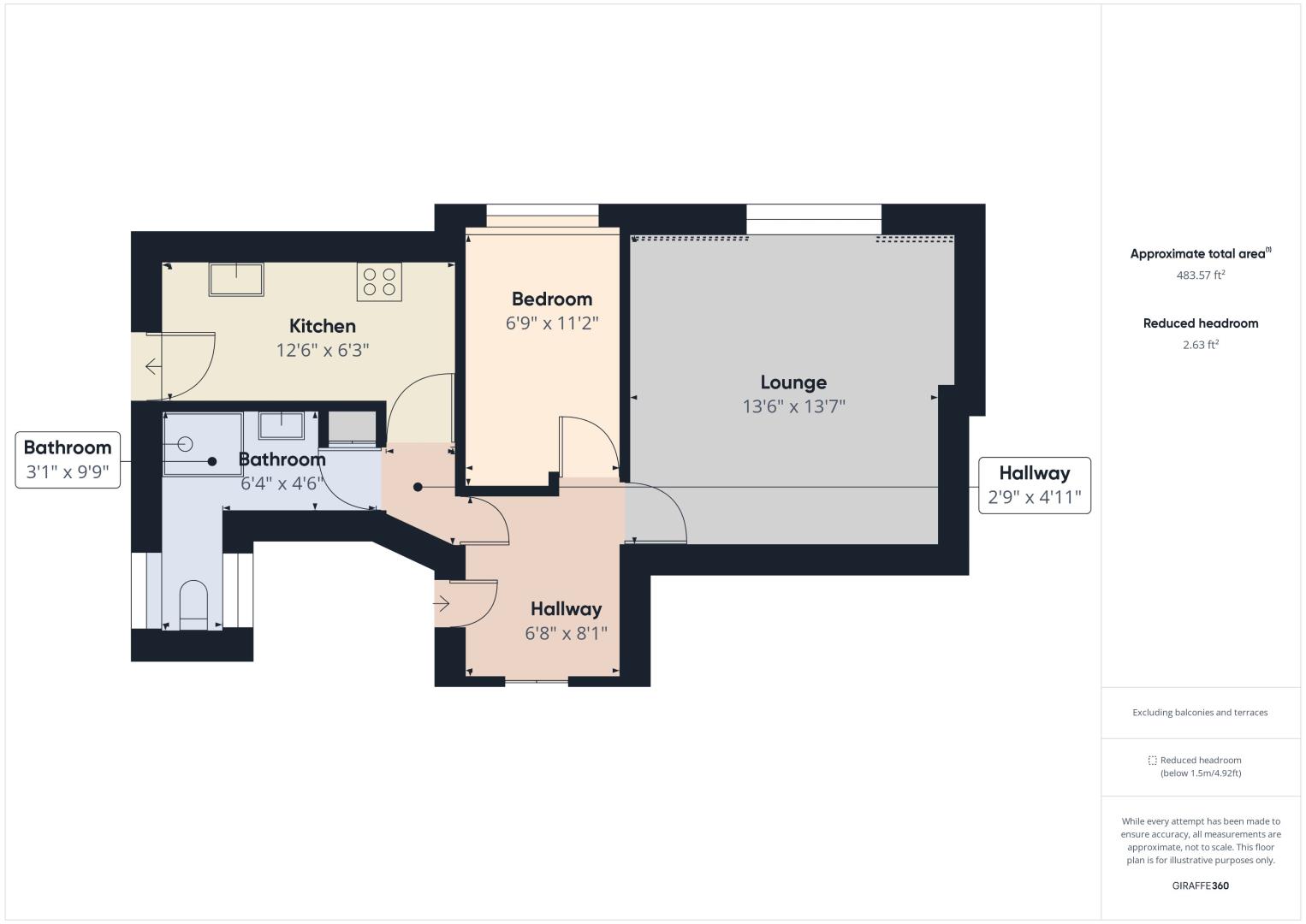
Step into a haven of style, where neutral greys and crisp whites set the tone for a contemporary living experience. The newly carpeted bedroom, though compact, is a masterclass in efficiency, boasting a luxurious ottoman bed for additional storage, a bedside table, and a spacious wardrobe.

The lounge, bathed in natural light, is generously proportioned and versatile enough to create a dining area. 🍽️ Picture-perfect views of the manicured communal garden provide a serene backdrop to your daily life.

Indulge in the luxury of a brand-new shower room, adorned with splashback panels, featuring a modern shower, toilet, and wash basin.
Practicality meets elegance with an additional storage cupboard for your linens and towels.

The kitchen is a culinary dream, with a contemporary design and top-of-the-line appliances.
The integrated fridge, freezer, oven, hob, and extractor, along with a free-standing washing machine, ensure both style and functionality.

Location is everything, and this home is just a short stroll away from the vibrant village of Moseley. 🚶‍♂️ Explore a plethora of amenities, from delightful dining options to convenient takeaways, right at your doorstep.

Commute with ease, as public transport is readily accessible, and the upcoming rail link promises even greater convenience.

The front driveway, available on a first-come, first-served basis, and ample on-street parking, add a practical touch for your convenience.

For nature lovers, your choices are endless, with Cannon Hill Park, Highbury, and the private park of Moseley offering a breath of fresh air and a variety of outdoor activities.

Make this refurbished flat your sanctuary and experience the joy of stylish living in the heart of Moseley. Act fast, as this gem won't stay on the market for long!


Property Ref : 2942
Virtual Tour
Photographs
Floorplans
Print this Property
Additonal Information
EPC Rating: C
Council Tax Band: A
Council Tax Rate (Standard): £1,497
Max. Broadband Speed (estimated): 80 Mbps
Mains Gas: Yes
Mains Water: Yes
Mains Drainage: Yes
Mains Electricity: Yes
Property Reference: 2942
GDPR: By submitting an enquiry, you consent to your information being shared with the seller of this property or the agent representing the property. Your details will only be used to respond to your enquiry and arrange viewings or provide further information.
Property Questionnaire
Lettings
All information in this property questionnaire has been provided by the landlord.
Do you have Landlords Insurance?
No
Yes
Do you have Buildings Insurance ?
No
Yes
Do you have contents insurance for any contents that you own and will be providing during the tenancy?
No
Yes
Does any part of your property contain Asbestos?
No
Yes
Are any tenants going to be restricted access to any parts of the house, or sub-buildings? (e.g. loft)
No
Yes
Do you plan to or have you arranged for any works to be carried out which may affect the tenant's moving in date or living conditions?
No
Yes
Furnished State
Unfurnished
Part Furnished
Furnished
Please specify the furnishing level of the property
Are you aware of any covenants, which have not been covered within this form?
No
Yes
Are you aware of any other material issues or information which relates to the property or has anything occurred which may affect the average consumers transactional decision.
No
Yes
Services
Map View
Street View
Local Info
None
All
Dentist
Doctor
Hospital
Train
Bus
Cemetery
Cinema
Gym
Bar
Restaurant
Supermarket
Energy Performance Certificate
The full EPC chart is available either by contacting the office number listed below, or by downloading the Property Brochure
Energy Efficency Rating
CURRENT
C
(74)
POTENTIAL
C
(74)
Energy Efficency Rating
Current
Potential
(92+)
A
(81 to 91)
B
(69 to 80)
C
(55 to 68)
D
(39 to 54)
E
(21 to 38)
F
(1 to 20)
G
74
74
England & Wales
EU Directive 2002/91/EC
The energy efficiency rating is a measure of the overall efficiency of a home. The higher the rating the more energy efficient the home is and the lower the fuel bills will be.
Professional Contact Request Close

If you are a company representative or professional wishing to contact the agent of this property in relation on an on-going sale, simply complete the form below. Please note that all communication is monitored and logged. No unsolicited contact is permitted.

  Request Contact
Cancel
Logging your message..
Your message and contact details have been forwarded to the Landlord.
  Continue
Oops! Please try again.
  Try Again
Share this Property! Close
Salisbury Road, Birmingham Share with all of your friends & followers using the social media options above, or with a single friend using the form below
  Share
Cancel
By clicking send you agree to our privacy policy?
Sending your friend an email..
Success! Please ask your friend to check their email.
  Continue
Oops! Please try again, or contact us and we will send your friend a printed brochure.
  Try Again
Get in Touch! Close

Have a question? Send the Landlord a message and let you know when they reply

  Send
Cancel
Sending your message..
We will let you know when the Landlord replies
  Continue
Oops! Please try again.
  Try Again
Book a Viewing Cancel
FORM HERE
Thursday 21st January
7:30pm > 8:00pm
Requesting your viewing..
Your appointment has been requested, but requires confirmation by the property representitive.
Thursday 21st January
7:30pm > 8:00pm
Your appointment has been confirmed.
Thursday 21st January
7:30pm > 8:00pm
We couldn't secure that appointment. Please try selecting an alternative date / time.
Continue
Back
Confirm
Continue
Back
Mortgage Calculator Close